北京单层32㎡蜗居改造,10个空间,15项全能,老破小变身超赞阳光房!
阅读量:3795788
2019-10-26

在寸土寸金的北京
屋主小两口有着一个属于自己的小家
房子是复式结构,每层只有32㎡
但屋主还是希望可以有一个空间
能够存储他们小两口的大量书籍
空间有限的小户型,若没有好好规划
一不小心就会显得杂乱拥挤
于是将功能兼容,是最明智的做法

地点:北京
面积:64㎡
费用:硬装5W,软装7W

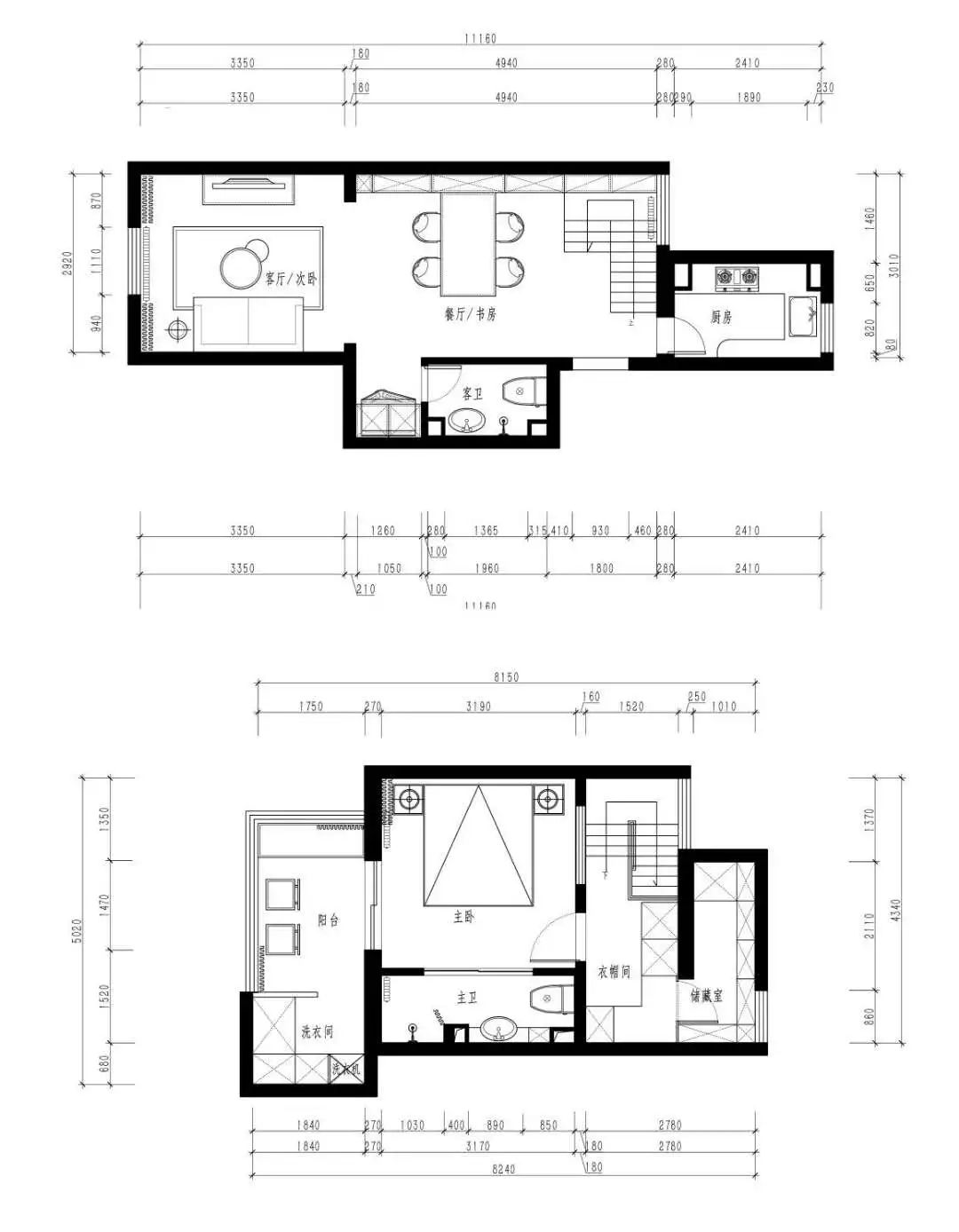
▲原始平面图

▲平面布局图

改造前,餐桌被挤在楼梯下
每次有个子稍高些的朋友来家里吃饭
总要担心站起来会磕到
厚重的楼梯设计
也遮住了客厅唯一的采光玻璃

▲餐厅改造前
改造后的这里,既是餐厅,又是书房
自然光照+吊灯照明
大大提高了这个区域的采光问题

楼梯原本是要找厂家定制的
但是没想到拆除了最外层之后
钢骨架也正配的上这个家的调调
于是就把它保留了下来
并在踏步上填充了水泥

因为女主人是双鱼座
于是在楼梯的踏步上
每隔一阶都设计了一对小鱼
这是工人按照图纸1:1的比例
一颗一颗嵌进去的,非常考验手艺
也是女主人非常喜爱的一处DIY

楼梯下方既然不方便使用
就留给花花草草好了
这面墙正对着整体的入户门
一打开门,就可以看到整整齐齐的花草
以及屋主从全国各地淘来的宝贝
窗户台面并没有使用常规的石材来做
而是用木板直接转角做了花台

改造前,书房里面沙发正对着房门
使用起来感觉并不是那么舒适
书柜摆放的位置离窗户也很近
遇上雾霾尘土的天气,不得不频繁擦拭
最麻烦的是,每当有想写文字的冲动时
只能随手拿个纸笔,垫在腿上来写

▲改造前客厅与书房区域
改造后的这里
将原客厅和书房之间的墙体拆掉
模糊了空间划分
用最原始的钢板来装饰
既打破了原来局限的空间
又做出了屋主青睐的风格

屋主喜欢原木材质
不同深浅层次的木色,增强了视觉感
组合柜上部分镂空,用来放书籍和展示品
下部分用了抽屉
储藏一些展示性没那么好的物件

▲客厅施工过程
客厅与餐厅之间,加了一个帘子
平常可以将帘子打开
让这个空间在视觉上看起来通透
如果有朋友或家人留宿的话
晚上可以把窗帘合起来
解决私密性问题,不会让客人觉得尴尬

▲改造前的卫生间
一层的卫生间只有2.1㎡,没有窗户
没有合适的储物空间
导致卫生间杂乱无章
改造后,墙面选择简洁大方的白色哑光砖
地面选择了300*300规格的花砖
马桶上方的置物架大大解决了储物的问题

二楼的楼梯部分采光很差
于是在卧室与楼梯的共墙做了一面窗
这样就不用担心楼梯采光问题了
窗的内侧安装了窗帘
保证了卧室的私密性

▲改造前楼梯间

改造前楼梯间储物空间极少
也不是特别方便
所以每天楼梯扶手上都会搭满衣服
穿衣镜的位置也是很不安全
多后退几步就很容易踏空到楼梯下了

▲改造前楼梯间
于是直接利用了楼梯间的空间做了储物间
楼梯扶手的尽头
处也加了一排衣柜,连接成L型
在保证走廊能正常过人的基础上
加了一个超长衣帽间
这可是每个女生都期待的空间

▲改造前卧室
二层的顶面并不是平整的,房高也有限
索性取消掉了主吊灯照明
改为点光源筒灯的分散照明
不但光线均匀分布
光的亮度也不会太刺眼
床头两侧的壁灯
可以由男女主人分别控制
可以互相不造成影响

改造前主卧的卫生间很小
马桶、淋浴、洗手盆全挤在不足2㎡的空间
洗衣机的位置也不舒服
每天面对这样杂乱的一堵墙
很是影响心情


▲改造前主卧卫生间
改造后的卫生间,向外扩出了一部分
这部分空间被用来做淋浴
尺寸没有足够大到放下一个完整方正的淋浴屏
但又要解决干湿分离的问题
于是让工人现场砌了流水型挡水台
上面用马赛克来铺贴,好看又便宜

二层的供暖很充足
并不需要把卧室和阳台隔开
屋主想要个有情调的阳台
不希望阳台只是晾衣服的、乱乱的空间
更何况每次晾衣服时都没法开关阳台门
冬天水滴滴在地面上,特别冰冷

阳台最里侧
狭小的暗室也并无太大利用价值
虽然屋主很舍不得这大好采光
买了简易的吧椅和小圆桌
但依然改善不了阳台的冰冷感

▲改造前的阳台
如今暖色调的橘红色让整个阳台都亮了起来
小两口最喜欢每天坐在这
一起聊聊以前的美好回忆
也不忘畅想一下以后有宝宝的日子
感到累了的时候
也可以躺在右侧的储物箱上晒晒太阳

现场DIY的小篱笆栅栏
围合成一个洗衣空间
乱糟糟的生活用品
可以全部藏在这个地方了
晾完衣服还可以在洗衣房的台面上熨烫

▲施工当天,下午三点,阳光刚好照进来
大大的观景窗+木质的小书台
屋主每天都愿意来这张望一下窗外的那片湖
一本《山河岁月》
足够一个人静静的呆上一个下午了

一个小小的温馨房子
就能带来足够的安全和安定感
在这个节奏快到让人喘不过气来的城市
没有什么比一个“家”更治愈
案例来源:北京七巧天工装饰设计有限公司
设计师:王冰洁
微信:BING7QTG
文字由装个好房子编辑
------ [END] ------

全福州买房卖房的人都在看

热点关注
全球推介,福建惊艳了全世界
假如福州楼盘会发朋友圈
福州公积金购房10问(先收藏)
四环9月通车有眼光的购房人早就下手了
邻居的房子竟然少花10万,我买贵了吗?
会囤房也会“断舍离”,一个70后普通人的买房观
说 房
笔笔说房6 中庚香海湾
笔笔说房5 山海大观
笔笔说房4 世茂五四理想城
笔笔说房3 世茂禹洲璀璨江山
笔笔说房2 福晟印江南
笔笔说房1 天空之城